


近日
徐州市自然资源和规划局发布
(云龙)土山巷民俗风情街项目
规划方案公示通告
“彭城七里”又要增加一个好去处

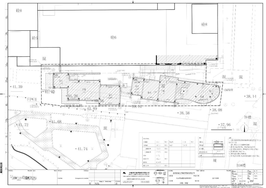
土山巷民俗风情街项目规划方案经我局审查,该项目建筑退让道路红线的距离符合规定,总平面布局合理,建筑密度、容积率和绿地率满足规划要求。根据《徐州市规划局关于做好城市规划实施公开公示的若干意见》的规定,现将该项目的总平面图进行公示,请公民、法人或其它组织提出合理建议,以便完善设计成果。
建设单位:徐州彭城七里城市更新有限公司
地址:云龙区 中山南路东、和平路北
建设规模:总建筑面积342.57平方米,计容建筑面积342.57平方米
容积率:0.472
绿地率:10.63%
建筑密度:40.46%
点击查看民俗风情街总平面图
▼

土山巷民俗风情街项目改造前
▼


土山巷民俗风情街
位于土城汉风片区
徐州市口腔医院即将迁建至此
周边的饮食文化博物馆、剪子股菜市、
博物馆停车楼等项目此前也已投入使用

徐州饮食文化博物馆

剪子股菜市与和平路停车楼
片区的更新改造,既保留了历史风貌,也兼顾着民生需求:和平路停车楼、户部山停车楼有效缓解了“停车难” 问题;饮食文化博物馆西街上的“七里画报”等打卡点,吸引游人驻足拍照;嵌入式社区服务中心则融合5G智慧医疗、普惠养老托幼等多元功能,为居民生活提供便捷服务……这些实实在在的改变,让这片街区焕发出全新活力,展现出古今交融的独特魅力。
土山巷民俗风情街紧邻彭城路
这是徐州的一条历史文化名街
位于徐州古城区的南北中轴线

故址在奎河南门桥北端
泛亚大厦附近的徐州古城南门
是历代徐州城的正门
而南门外的彭城路
过去则被称为南关大街
百姓称为上街
是唐宋以来慢慢形成的
这里历来是徐州繁华所在

漫步“土城汉风”片区,历史与现代在此和谐共存。古色古香的园林、建筑讲述着城市的悠久历史,改造一新的居民区则持续提升着居民的幸福感。这种恰到好处的平衡与融合,让“土城汉风”片区既有深厚的文化根基,又充满鲜活的生活气息,成为徐州这座城市继往开来的生动写照。
期待土山巷民俗风情街早日建成
为彭城七里再添靓丽的一笔